수업개강일평일 12.15(월)   주말 12.13(토)
  • 모스시험YBM공식지정센터
  • 2022브랜드어워드

COMMUNITY

새로운 소식들과 다양한 혜택들이 가득한 더블유컴퓨터아트학원
수강생들의 생생한 후기와 인터뷰를 확인해보세요.

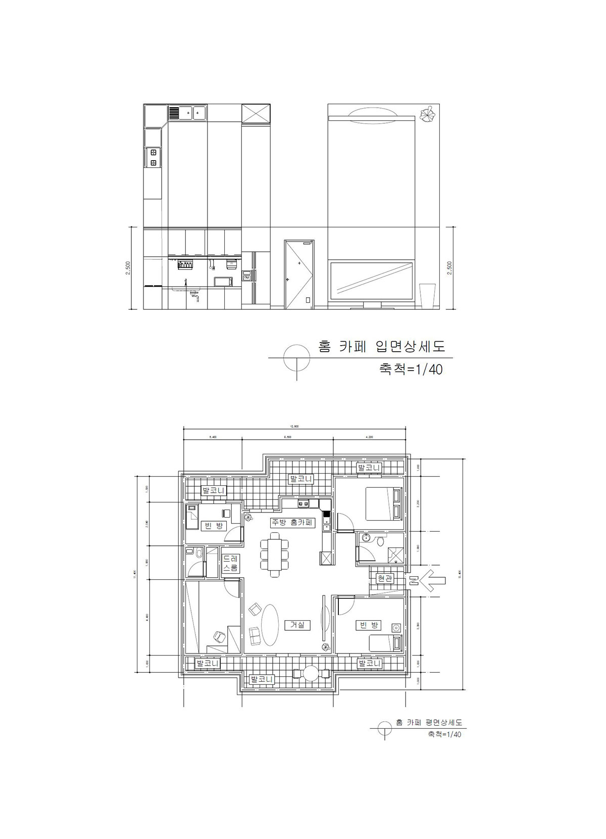
[건축/인테리어학과] 홈 카페 입면도
  • 수강생명김지은
  • 조회수25,768
포트폴리오게시글 타이틀이미지
홈 카페 입면도
건축/인테리어학과
김지은 수강생
  • 작품명
    홈 카페 입면도
  • 수강과정 및 담당강사
    건축/인테리어학과정다은 강사
  • 작업 프로그램
    Auto CAD
이미지게시글 이미지

원클릭 간편 수강문의

쉽고 빠르게 관심있는 교육과정의 정보를 조회할 수 있습니다.

관심과정
지점
선택과정
이름
연락처
  • -
  • -
개인정보취급방침
더블유컴퓨터아트학원 개인정보 보호정책

1. 수집하는 개인정보 항목 및 수집방법
- 더블유컴퓨터아트학원은 고객의 상담신청(수강료조회, 온라인상담, 간편카톡조회, 위치조회)을 위해 개인정보를 아래와 같이 수집하고 있습니다.
- [필수] 이름, 휴대폰번호 더블유컴퓨터아트학원은 다음과 같은 방법으로 개인정보를 수집합니다.
- 홈페이지 내 상담신청(수강료조회, 온라인상담, 간편카톡조회, 위치조회)을 통해 개인정보를 수집하고 있습니다.

2. 개인정보 수집 및 이용목적
- 과정문의에 대한 학과담당선생님의 전화 및 SNS 상담

3. 수집한 개인정보의 보유 및 이용기간
- 수집한 개인정보의 보유 및 이용기간 모든 검토가 완료된 후 5년간 이용자의 조회를 위하여 보관하며, 이 후 해당정보를 지체없이 파기합니다.

4. 동의를 거부할 권리가 있다는 사실과 동의 거부에 따른 불이익 내용
- 고객의 더블유컴퓨터아트학원 홈페이지에서 수집하는 개인정보에 대해 동의를 거부할 권리가 있으며 동의 거부 시에는 회원가입 및 상담신청(수강료조회, 온라인상담, 간편카톡조회, 위치조회) 등의 홈페이지 서비스가 일부 제한 됩니다.

※ 개인정보를 파기할 때의 삭제 방법
- 종이에 출력된 개인정보 : 분쇄기로 분쇄하거나 소각
- 대금결제 및 재화등의 공급에 관한 기록 : 5년
- 전자적 파일 형태로 저장된 개인정보 : 기록을 재생할 수 없는 기술적 방법을 사용하여 삭제

기입하신 정보는 수강료 조회 및 상담신청 목적외에 다른 용도로 절대 사용하지 않으며, 내용이 사실과 다를 시 조회 서비스가 원활하게 진행되지 않을 수 있습니다.